
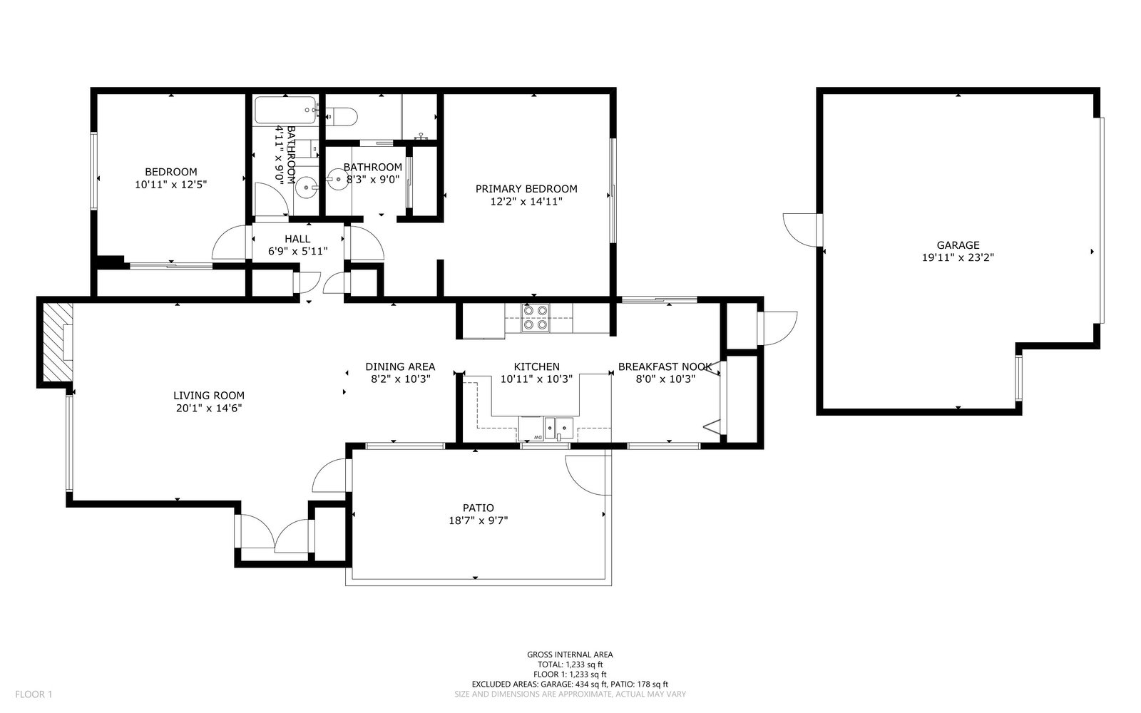
This is it! Welcome to this light and bright Willow Glen townhome with loads of upgrades. With immaculate hardwood flooring throughout and vaulted ceilings, the appeal is obvious as soon as you step inside. The gourmet kitchen features sparkling white cabinets, granite counters, stainless steel appliances and recessed ceiling. Use the adjacent space as a breakfast nook, office or study area. Enjoy Milgard windows, plantation shutters and central heat/AC. Spacious bedrooms with plenty of storage and updated bathrooms with granite counters. Two patios are ideal for dining alfresco and gardening. The two-car garage has additional space for storage or a workshop. Beautiful and well-maintained complex featuring mature landscaping and redwoods. The HOA includes a clubhouse, community pool, jacuzzi, gym, bocce and tennis court. This home is also next to Roy Avenue Park, and minutes to downtown Willow Glen with its extensive selection of restaurants and shopping. Close to 280, 87 and 85. Don’t miss this great opportunity!